REMOD: Homes for the Homeless

Urban Dwelling Studio (ARCH 608) · Kansas City, MO · Fall 2025

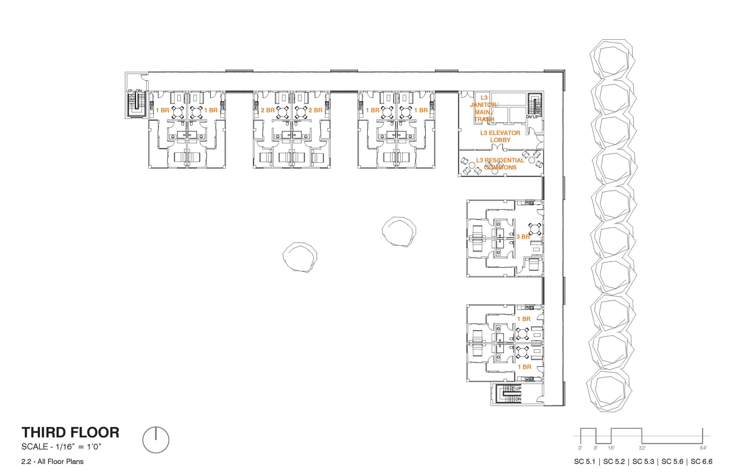
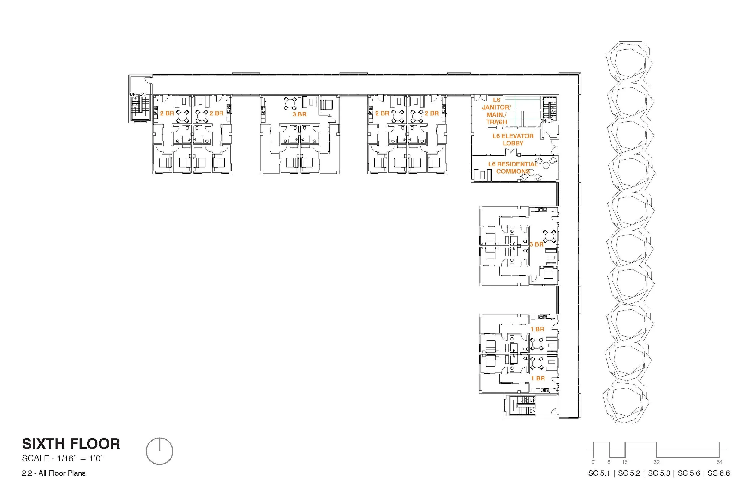
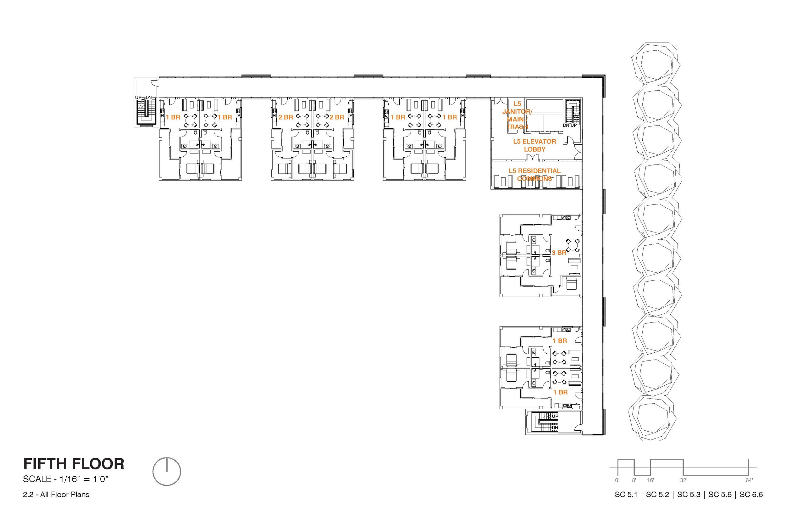
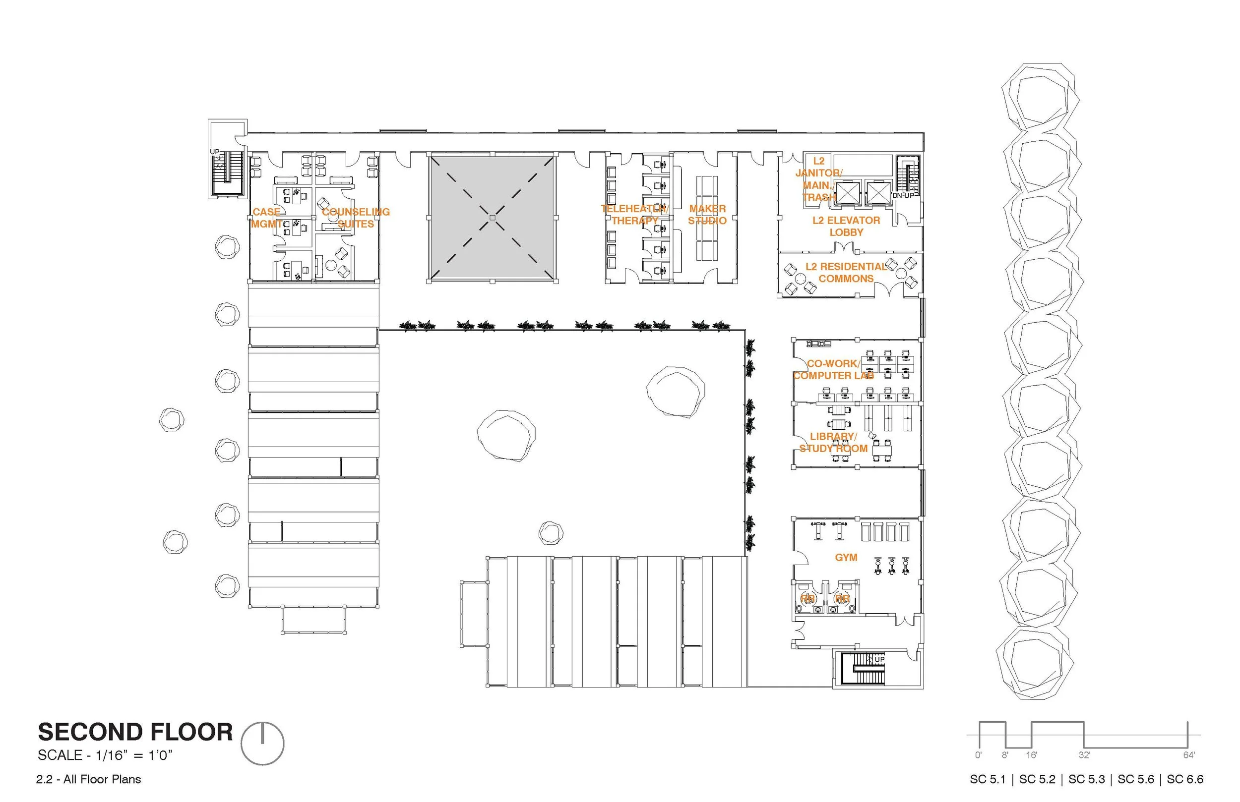
REMOD explores housing as a foundation for dignity, stability, and long-term wellness. Developed in the Urban Dwelling studio, the project responds to homelessness in Kansas City through a layered system of housing, services, and shared spaces that balance privacy with community engagement. User research and social theory informed decisions related to circulation, thresholds, and territoriality, shaping a clear public-to-private spatial hierarchy. Environmental strategies, modular residential units, and accessible design principles are integrated to support a resilient, humane, and adaptable living environment rooted in its urban context.

Previous
Previous

Olathe Pediatric Cancer Center

Next
Next

Kenya Health & Wellness Center